
UPDATED:
Key Details
Property Type Townhouse
Sub Type Townhouse
Listing Status Active
Purchase Type For Sale
Square Footage 1,567 sqft
Price per Sqft $191
Subdivision Avery Centre
MLS Listing ID 7807066
Style See Remarks
Bedrooms 3
Full Baths 2
Half Baths 1
HOA Fees $112/mo
HOA Y/N Yes
Year Built 2025
Tax Year 2024
Lot Size 5,031 Sqft
Acres 0.1155
Lot Dimensions 76x20
Property Sub-Type Townhouse
Source actris
Property Description
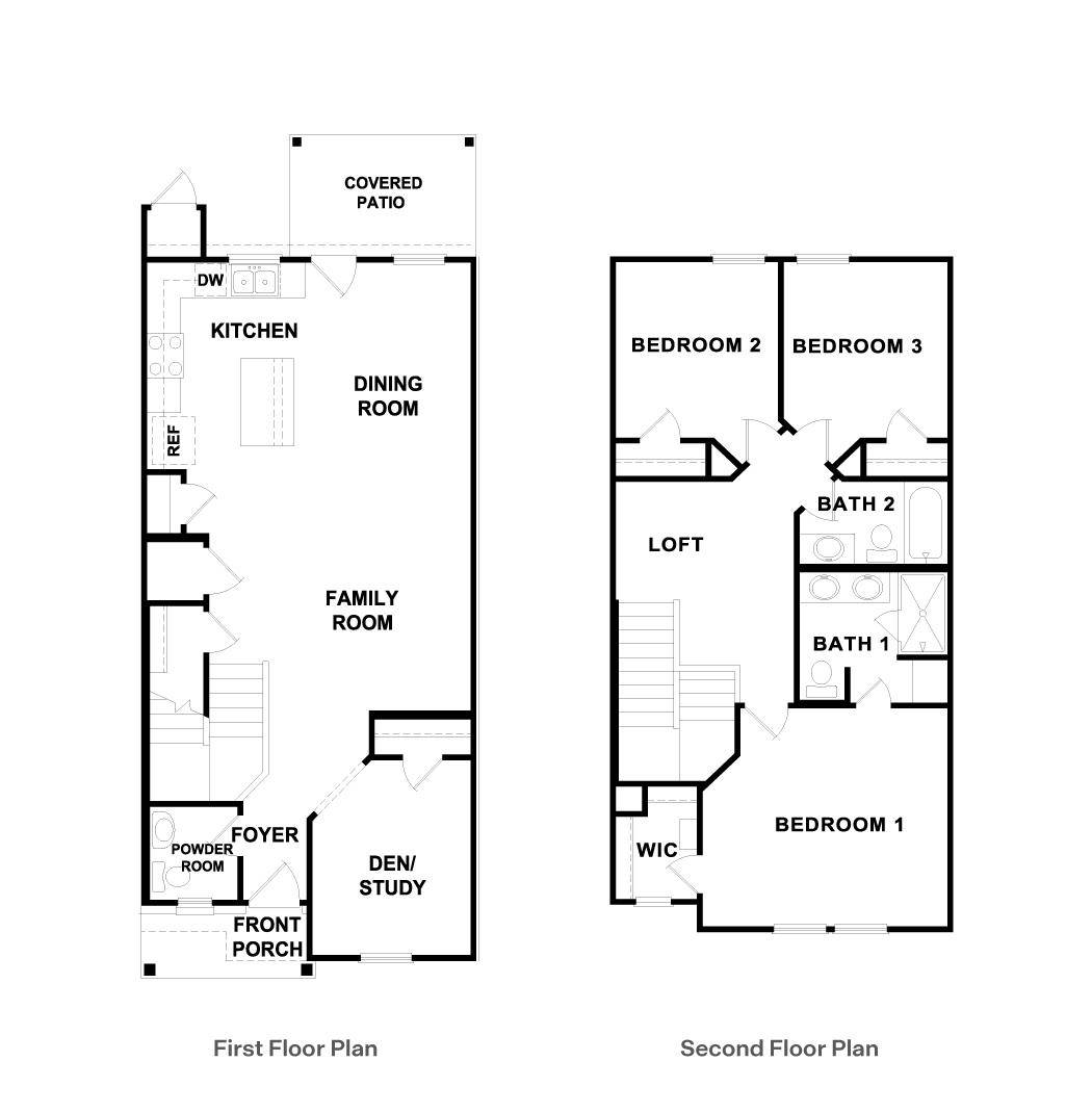
Photos are representative of plan and may vary as built.
Take a look at the Smithwick floorplan at our Avery Centre community in Round Rock, TX. Designed with you in mind, this floorplan offers 1,567 square feet of living space across 3 bedrooms and 2.5 bathrooms. With 2 exterior elevations to choose from, you're sure to find the perfect design that aligns with your personal style.
At the front of the home you'll find a powder bathroom and study area. Making your way towards the kitchen, the open concept family room and dining area is sure to impress. The kitchen features stainless steel appliances, white cabinets, and Silestone® kitchen countertops. From the dining area you'll catch a glimpse of your beautiful backyard and covered back patio.
The two other bedrooms and a full bathroom are also located upstairs. Whether these room are used for a child's bedrooms, and office space, or home gym, the possibilities are endless. You'll also find the spacious main bedroom located towards the front of the home. The bedroom features an adjoined bathroom with a double vanity sink and walk-in shower.
This home comes included with a professionally designed landscape package and a full irrigation system as well as our America's Smart Home® package that offers devices such as the Qolsys IQ Panel, Video Doorbell, Alarm.com app, Honeywell Thermostat, Deako Smart Light Switch, Kwikset Smart lock, and more.
Location
State TX
County Williamson
Interior
Interior Features Smart Home, Smart Thermostat, Walk-In Closet(s)
Heating Central
Cooling Central Air
Flooring Carpet, Vinyl
Fireplace No
Appliance Dishwasher, Disposal, Microwave, Range
Exterior
Exterior Feature Private Yard
Garage Spaces 2.0
Fence Back Yard, Fenced, Gate
Pool None
Community Features High Speed Internet
Utilities Available Cable Available, Electricity Available, High Speed Internet, Phone Available, Sewer Available, Water Available
Waterfront Description None
View None
Roof Type Shingle
Porch Covered, Patio
Total Parking Spaces 2
Private Pool No
Building
Lot Description Alley, Level
Faces West
Foundation Slab
Sewer Public Sewer
Water Public
Level or Stories Two
Structure Type HardiPlank Type,Masonry – All Sides
New Construction Yes
Schools
Elementary Schools Redbud
Middle Schools Hopewell
High Schools Stony Point
School District Round Rock Isd
Others
HOA Fee Include Common Area Maintenance
Special Listing Condition Standard
Virtual Tour https://my.matterport.com/show/?m=vLzhdZJHQrY
GET MORE INFORMATION

- Homes for Sale in Cedar Park
- Homes for Sale in Austin
- Homes for Sale in Liberty Hill
- Homes for Sale in Leander
- Homes for Sale in Hutto
- Homes for Sale in Round Rock
- Homes for Sale in Georgetown
- Homes for Sale in Pflugerville
- Homes for Sale in Lago Vista
- Homes with a Pool
- Luxury Home Search
- Land for Sale




